HCII TRUZIRANI REZER
Cat:Okretanje traka
Kroz suradnju između vodećeg kotača i vodeće šine, pojas se može povući i voditi da se vozi. Znača...
Napredna struktura, visokokvalitetna performansi, jednostavna za upotrebu, visoka pouzdanost i izdržljivost.
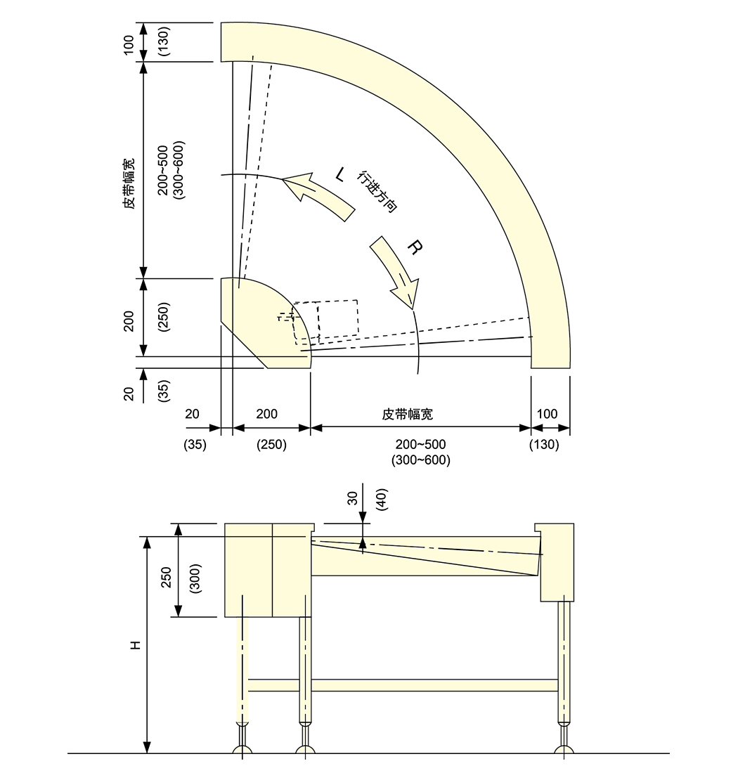
Stroj za okretanje remena uobičajena je oprema za prenošenje, uglavnom koja se koristi za prijenos materijala s jedne trake transportne linije na još 90 stupnjeva ili 180 stupnjeva transportnog traka. Sastoji se od komponenti kao što su pojasevi, okviri, valjci pogona, valjci za preokret, palete s opterećenjem, valjci za povratak i uređaji za zatezanje. Materijal transportnog pojasa stroja za okretanje remena uključuje razne materijale kao što su PVC, PU, PVK, itd. Osim što se koristi za prenošenje običnih materijala, također može ispuniti prijevoz materijala s posebnim zahtjevima kao što su otpornost na ulje, otpornost na koroziju ulja i anti-statički.33
Zašto održavanje valjkastih transportera izravno utječe na vijek trajanja sustava Va...
Pročitajte višeŠto valjkasti transporter čini uistinu teškim? Valjkasti transporter za teške uvjete rad...
Pročitajte višeŠto su transporteri s valjcima i zašto je vrsta važna? Valjkasti transporteri s...
Pročitajte višeZašto valjkasti transporteri ostaju okosnica rukovanja materijalom Valjkasti transpo...
Pročitajte višeTransportni sustavi premještaju milijune tona materijala svaki dan kroz tvornice, skl...
Pročitajte višeDonošenje umijeća u budućnost.
No.60, Zhenhu North Road, grad Hudai, okrug Binhu , Wuxi 214100, Kina







